Proizvodi
Kontaktirajte nas
Spiroflex d.o.o.
Ljudevita Gaja 7
35 208 Ruščica
Hrvatska
Telefon: +385 35 212 425
e-mail: info@spiroflex.hr
Metalni mjehovi
Metalne kompenzatorske brtve u ventilima
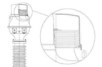
Ventili s metalnom kompenzatorskom brtvom su novi tip ventila inovirani i projektirani za zaštitu od curenja u atmosferu, te se koriste za hermetičko brtvljenje. Mjehovi su napravljeni od nehrđajućih čelika ili slitina nikla. Kompenzatori brtve ventila su optimalno rješenje u ventilima za toksične, zapaljive, korozijske, radioaktivne i otrovne medije. Nadalje za vakuumske ventile, ventile za vruće ulje, ventile za amonijak, ventile za paru, visoko tlačne i visoko temperaturne ventile. Ovi ventili garantiraju "isticanje nula" i također su poznati kao najbolji raspoloživi ventili koji eliminiraju gubitke medija i smanjuju rizike kao i troškove nadzora.
Kompenzatori za volumetrijske promjene – dilatacije ulja
Hermetički zabrtvljen kompenzator-mijeh od nehrđajućeg čelika, za dilatacije ulja. Ispitan na nepropusnost helijem na 1×10-7 mbar•l•s-1
